Green Eastside - Leben in der Donaustadt

Bertha-von-Suttner-Gasse 4, 1220 Wien

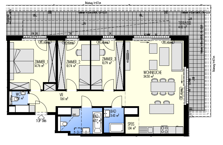
Eckdaten

Stiege  3 • Stock 7.OG • Top 3-086
Zimmer 4  • Größe 95,26 m²/41,12 m² Terrasse
Bezug geplant Q4/2022

Preis/Finanzierung

Gesamtkaufpreis
EUR 647.848,80
Suche
2

Suche

Grösse
Grösse...m2...m2
Zimmer
Zimmer12